Gasirea unui echilibru intre rolurile importante pe care le joaca familia si spatiul inconjurator, devine un scop principal atunci cand vorbim de inaintarea in varsta.
In cazul acestui apartament locuit de o familie de parinti pensionari, acest ideal al armoniei se atinge cu ajutorul unei amenajari clasice, elegante si cu accente moderne subtile.
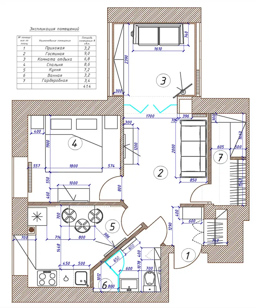
Pentru conturarea unei atmosfere linistite, prielnice socializarii si relaxarii, toti cei 41 de metri patrati sunt exploatati functional astfel incat sa satisfaca toate cerintele beneficiarilor.
Largirea vizuala a spatiului si atribuiriea unui caracter practic, impart camera de zi in doua portiuni segmentate, separate cu ajutorul unui perete din sticla.
In spatiul de trecere si de legatura a celorlalte incaperi, unde intreaga poveste a amenajarii se prezinta concret prin design-ul tutoror componentelor, mobilierul si corpurile de iluminat vin in cadrul prezentarii cu un aspect vintage, parchetul se ascunde sub imaginea unui linoleum clasic, iar accesoriile si accentele aurii aduc in discutie eleganta unui spatiu temporal indepartat.
Nu putem sa nu observam insa adaugarea detaliilor cu iz modern si anume, a benzilor de led incastrate in scafele ce decoreaza tavanul.
In cazul camerei de relaxare aflate in continuarea spatiului de zi, florile capata o insemnatate aparte, oferindu-i spatiului detaliul romantic de care are nevoie clasicul pur si asta cu ajutorul tapetului.
Accentul cade cu precadere pe ideea de relaxare si socializare, acest lucru putand fi observat din alegerea canapelelor ca si componente principale, tocmai pentru a oferi confort si spatiu in egala masura. Parca desprinsa din revistele retro, bucataria contureaza o atmosfera calda cu ajutorul liniilor elegante si a culorilor pastelate care o compun.
Mobilierul este unul cu aspect retrosi este scos din anonimat cu ajutorul mozaicului geometric care separa corpurile corpurile ce il compun.
Zona de dining capata o insemnatate artistica prin intermediul picturii murale cu aspect natural, iar peisajul de poveste este complet cu ajutorul scaunelor, masutei si accesoriilor, toate in detalii retro-elegante.
Dormitorul matrimonial pastreaza paleta cromatica regasita in bucatarie si aduce in prim plan un tapet clasic cu accente aurii. Pattern-ul tapetului se regaseste si in accesoriile care dau patului caracterul retro si elegant.
Ce atrage atentia insa in cazul acestei incaperi, sunt cele doua veioze care, intr-un mod ultra modern, coboara din tavan pana in dreptul noptierelor si nu se pozitioneaza pe suprafata acestora asa cum ne-am obisnuit.
Design-ul baii pleaca de la ideea unui alt plan temporal si anume, unul modern, simplist, geometric. Dispunerea placilor de gresie fac posibila obtinerea unui pattern liniar, cu un impact vizual puternic, comparativ cu o iluzie optica. Sticla devine si aici un material cu rol principal, iar impreuna cu albul imaculat si oglinda, fac posibila o largire vizuala a incaperii cu dimensiuni reduse.































